RANDIĆ
+SURADNICI
ARCHIVE

Back
Project
Program
Location
Status
Year

Blu Mare Hotel

Novigrad, Croatia
Location
Novigrad, Croatia
Client
BLU MARE HOTELS D.O.O
Author
Saša Randić
Project team
Iva Vucković, Lena Maretić, Jasminka Jug, Vesna Jelušić, Janja Zovko, Petra Bolf, Barbara Horvatić, Marija Pavlović Galić
Interior design team
Atelier West Architekten AG
Area
1 101 m²
Year
2012. - 2024.

The Blu Mare Hotel is located in Novigrad’s historic center near key landmarks and integrates seamlessly into its surroundings. Designed as four interconnected cubic volumes inspired by the historic core’s dimensions, the structure combines simple geometry with a park separating it from the city wall. The façades, made of patinated exposed concrete, emphasize geometric purity, while the sea-facing side has movable panels and sliding glass walls that create loggias. The five-story building includes a lobby, restaurant, and rooms on the ground floor; wellness, a wine cellar, and technical spaces in the basement; additional rooms on the upper floors; and a recessed third floor with a roof terrace. The design blends functionality with a minimalist aesthetic, respecting Novigrad’s heritage.

Gradska knjižnica Rijeka

Rijeka, Croatia
Location
Rijeka, Croatia
Author
Saša Randić
Project team
Helena Dimitrišin -Tomasić, Olivija Horvatić, Daša Manojlović, Zorana Šimunović, Iva Vucković
Area
5 852 m²
Year
2014. - 2024.
Photographer
Domagoj Blažević

The reconstruction of the T-building for the Rijeka City Library is part of a broader initiative to transform the former Rikard Benčić industrial complex into a vibrant cultural hub. The aim was to establish a "Culture Block" within the city, bringing together institutions such as the Museum of Modern and Contemporary Art, the Museum of the City of Rijeka, and the Rijeka City Library, all now situated in newly renovated spaces. In addition, the Children's House, the fourth building in the complex, offers a cultural program specifically tailored for children.
Built in the late 19th century as part of a tobacco processing factory, the T-building was later incorporated into a ship engine manufacturing facility, which operated until the late 20th century. Following the closure of the factory, the building fell into disrepair despite its historical and architectural significance. Due to its proportions and architectural details, the T-building is now recognized as an important landmark within the surrounding urban environment.

This distinctive industrial structure features stone masonry construction and cast-iron columns in its interior. The façade is further accentuated by prefabricated brick elements. The primary goal of the reconstruction was to preserve the building’s original form while adapting it to modern requirements.
Prior to the reconstruction, the building was in poor condition. The stone walls were damaged, the roof required repairs, and the basement experienced flooding due to high groundwater levels. The southern wing of the building showed significant structural damage, including cracks and floor deformations. This wing was demolished and rebuilt as a stylistic replica of identical proportions and façade design, made of prefabricated glass-concrete elements, suspended on a steel frame. Structural improvements included reinforcing the load-bearing walls and adding deep foundation pylons to address the soft clay soil and high groundwater levels.

The interior is designed as simple and modern, featuring visible façade cladding and a load-bearing steel structure and the original industrial character is further emphasized by the automated book sorting system.
The remaining part of the building was restored to its original form. The entrance from the southern side, through the building’s southern wing, is at ground level, while the entrance from the northern side is via a new steel bridge, which also provides access to the building’s service area to the east. The steel bridges and staircases guide the movement throughout the building.

The mission of the City Library is to promote reading, education, and cultural enrichment, providing access to new technologies and encouraging creative engagement with free time. Its layout integrates various functions, including sections for youth, film and music, and services for people with disabilities, making the space accessible and user-friendly. The library works in conjunction with other institutions in the area to foster a vibrant cultural environment making it the city’s new living room.

Kulturni kompleks Rikard Benčić

Rijeka, Croatia
Location
Rijeka, Croatia
Client
City of Rijeka
Author
Saša Randić
Project team
Zorana Šimunović, Daša Manojlović, Iva Vucković, Olivija Horvatić, Helena Dimitrišin Tomasić
Year
2014. - 2020.
Photographer
Jure Živković, Marko Mihaljević

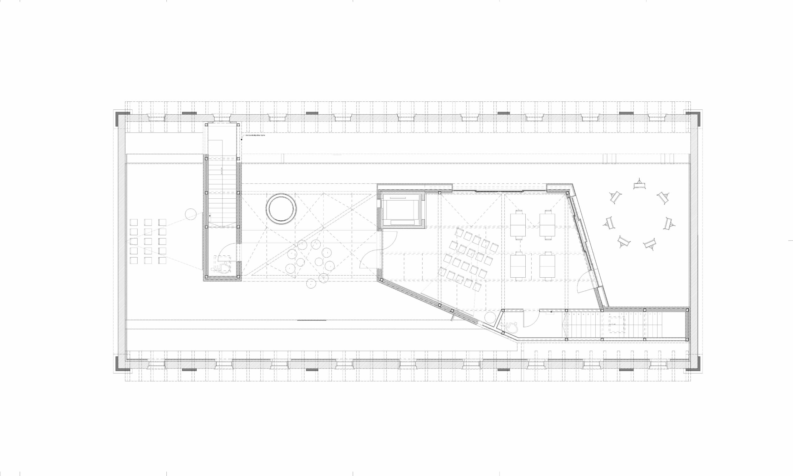
The Children’s House is a building dedicated to children inside the new Culture Block in Rijeka, Croatia. The construction is part of an urban requalification of a former industrial complex under the European Capital of Culture 2020 project. The new complex houses various cultural institutions: the City Museum, the Museum of Modern and Contemporary Art, the City Library, and the Children’s House.

Centrally located, the building is conceived as an entrance to these institutions, and as a symbolic entrance to the world of culture for children up to the age of 12.

Additionally, the building is used by the neighbouring institutions, including the Art Cinema and the Puppet Theatre, for both performances and educational activities. Children are not just spectators within the building, but are also performers and producers.

The building is organized as a box inserted within the original brick walls. The existing walls are reinforced with concrete, and the new concrete box is supported by steel beams and existing cast iron columns. Space between the two walls is used for staircases, which encircle the box in a clockwise direction. Individual rooms are accessed from this architectural promenade, giving each room its own feel and use.

The ground floor is Culture Block’s living room. The first floor has a small gallery, connected by the original steel bridge to the Museum of Modern and the Contemporary Art Building. The small gallery also serves as a large backstage. Next to this room is the two-storey theatre/cinema auditorium with 75-90 seats. Projection and direction rooms are connected with an audio and video lab on the second floor, enabling recording and editing of the material. The third floor is used entirely by the City Library childrens’ department. The space on the roof terrace is used for workshops and sensory theatre.

Electricity Transmission Operator Facility

Matulji, Croatia
Location
Matulji, Croatia
Author
Randić i Suradnici, Rijeka
Project team
Saša Randić, Iva Vucković, Iva Šulina, Zorana šimunović
Area
8 496 m²
Year
2019
Photographer
Marko Mihaljević

This building complex contains the offices, workshops and garages of the Croatian Transmission System Operator, Transmission Area Rijeka Centre.

The buildings are located next to the existing substation, emphasising the industrial character of the construction. The prefabricated concrete blocks provide space for the workshops and garages, while the offices are housed in the glazed volume.
The main focus of the project was the skin of the office building, as regards to the Nearly Zero Energy Building requirements and the architecture of office spaces.
The inner space of the double skin façade is accessible from the offices, allowing individual cultivation of plants in the preinstalled containers. The building’s skin is the only dynamic element of the complex’s austere design, constantly changing both the appearance of the building and the view from the inside.

Museum of Apoxyomenos

Mali Lošinj, Croatia
Location
Mali Lošinj, Croatia
Client
City of Mali Lošinj
Author
Saša Randić, Idis Turato
Year
2009-2012
Photographer
Jure Živković

Museum of Apoxyomenos is a building specifically converted to house one single exhibit: The Athlete of Croatia, a famous 192 cm high bronze sculpture made most likely in 2nd or 1st century BC in a Greek foundry. The sculpture was raised from the sea in the vicinity of the island Lošinj in Northern Adriatic in 1999.

Statue is one of few remaining Greek bronze sculptures from Hellenistic period and one of the best preserved.

Discussion where to display the sculpture has involved different cities, but at the end the choice fell on city of Mali Lošinj.
This decision was in line with the Croatian cultural policy from the 1990’s, favoring construction of museums in smaller communities. Museums have demonstrated capacity to generate social interaction and become true public spaces, so it made perfect sense to display the sculpture right next to the place it was discovered.

Chosen location for the museum was Pallazo Kvarner, an existing building forming the historical waterfront and the city’s facade, the “Riva”.

Two elements of this narrative were important for the architectural approach. The first one was that the sculpture found in the sea had actually no connection with the surrounding and it clearly belonged to a very different time and place.

The second one was a curious decision not to build a new building for it, but to use the interior of an existing house instead. Conditions from the Conservation Department even prohibited any intervention on the façade, demanding it to be restored in the original shape. It seemed odd that one of the most magnificent finds from Hellenistic period had to be displayed inside a carefully restored not-so-significant building.

For that reason museum was conceived as a completely independent metal casing, inserted inside the perimeter walls of the existing building. Display in the interior of a building also implied a more intimate presentation of the sculpture.

The inserted element is an exhibition device, dividing the area in 3 different spaces: exhibition space, residual space (service space) and public space.

Exhibition space is created from a predetermined exhibition concept, defining enclosed area of the museum. The outer shape of it is a wrap-up of these spaces.

The residual space, between the metal casing and the walls, is used as administrative and auxiliary space of the museum.

Third is the public space. Ground floor is conceived as a covered extension of the waterfront promenade, open for different uses, from exhibitions to various events.

Dynamics of the waterfront, particularly during the summer months, are not creating the most appropriate background for the museum. Waterfront is a vibrant public space, full with attractions, that are at the same time distractions.

Exhibition space, leading gradually to the sculpture, was conceived as a path.

The competition brief mentioned purification and decontamination of visitors in technical description of air-conditioning and ventilation requirements. It became apparent that the location required a sort of emotional purification as well, to prepare the visitors for the encounter with the sculpture

One of most common ritual forms of purification is a procession. Visitor is led, through a succession of the spaces and gradually prepared for the contact.

Architectural space is seen as a “architectural promenade”, as Corbusier used to call it, as a personal journey through space. Sequence of different spaces creates enough distance between the sculpture and the street but it also creates a sense of anticipation and discomfort, liberating the senses for the encounter.

Journey starts with an escalator, that brings group in the first room with exhibition displays about the sculpture and the find.

The second room is a soft room covered with thick carpet, where the visitors watch the movies.

From there a narrow staircase leads to a periscope room, where one sees the sculpture from below, and in enlarged details on the screen.

The path continues in the olive-tree cladded corridor with displays exhibiting organic material found in the sculpture.

From there the group finally enters the exhibition room with the sculpture.

Journey ends in the last room in the attic, mirroring the view of the bay.

Museum of Contemporary Art Rijeka

Rijeka, Croatia
Location
Rijeka, Croatia

The competition area is located within the former industrial complex in the city center. The museum, as one of the more important transformational programs, is situated in a T-shaped building of the former cigarette factory which dominates the northern part of the complex. The competition requires protection of the existing building and its transformation into a museum with a total surface area of 9000 m2.

The main concept stems from the understanding that the MSU (The Museum of Modern And Contemporary Art) should keep its neutral disposition equally in spatial organization and its prevalence without an urban theme, due to its active relationship with contemporary events.

The original building is preserved with an addition of two glazed cubes closing it in a single compact form. The exhibition and warehouse premises are positioned inside, while the external edge of the building (in the new and old parts of the building) has been planned for access to the exhibition and faces outwards.

The part of the program generally open to the public is spread alongside the building. The public hall follows the north-south axis, providing access to the exhibition area, shops, restaurant and public parking space in the basement. This area has been extended to the roof, where other public programs are also situated (the library, café bar, store, etc.), what prolongs the museum’s activity period. The roof kept its original geometry, but was replaced with a glass roof, thus opening it towards the environment, at the same time outlining the building’s new role.

Cultural Centre in Bakar

Bakar, Croatia
Location
Bakar, Croatia
Project team
Randić and Associates
Saša Randić, Vesna Milutin, Daša Manojlović, Olivija Horvatić, Tina Filjak Juračić, Iva Šulina, Sanja Ipšić-Randić, Iva Vucković
Structure
Ivan Arbanas
Year
2012

Cultural Centre in Bakar, a historical town on the north Adriatic coast, was originally built as Community Centre during the 1970’s. Community Centre’s had a significant role in the society, designated for diffusion of culture in smaller communities.

Various characteristics of socialist political and cultural environment have contributed to their outspread.

Culture had a clearly defined ideological position as part of the social Superstructure, so it had resources to stimulate different forms of cultural production and social activity. Cultural activity was not limited to art alone, but it has encompassed other activities including education. Lifelong learning courses have been regularly organized in Community Centers.

Next to it, traditional social gatherings took place in the Centre, taking the role that National Houses had in the pre-socialist society.
All of this has made Community Centers most important buildings in the municipalities, recognized as the center of a community. For that reason they have been usually built as oversized and monumental buildings.

Community Centers have been usually constructed in cities built on post-war industrialization, contrasting both elements of the Marxist cultural theory, Base, representing industrial production, and Superstructure, housed in Community Centre. The building in Bakar follows the same pattern. During the 1970’s, landscape surrounding the medieval town was dominated by heavy industry. Architecture of the Community Centre seemed to have responded to neighboring scale and form of industrial plants and port infrastructure. The building was divided in several parts, typical for Community Centers of the period; central hall for events, offices for municipal administration, rooms for civil societies and communal area with café and a bowling alley.

The industry has disappeared with the transitional processes of the 1990’s, but so has the social environment that has enabled activity in the Centre. Like in many other post-socialist locations, the change in cultural policy has emptied the budget, leaving a structure too big for contemporary needs.
The building was gradually decaying and largely out of use, until the reconstruction works began in 2012.

Restoration approach is embracing the fact this is an oversized building with an expressive geometry.

Interior of the building is cleared of all partitions, creating one big covered space, opening to the surrounding terrain. Without a fixed set of activities, unlike from the period when it was built, the building is conceived as an empty shell that can accommodate various programs. It is a generous covered public space, periodically colonized with municipal events and gatherings. Structural wall is dividing the interior in two, concert hall on one side and a large open space on the other, housing workshops, café and area available to local NGO’s.

Expressive shape of the building, previously covered with metal panels, has been reduced to basic geometrical shapes, emphasized with colors.

Recent selection of the neighboring city of Rijeka as European Culture Capital for 2020, creates a new environment and condition where culture represents an agency for a once strong industrial region to reinvent itself. Cultural Centre offers to the city of Bakar an opportunity to take part in these processes.

Pope John Paul II Hall

Rijeka, Croatia
Location
Rijeka, Croatia
Client
Franciscan monastery Trsat
Author
Saša Randić, Idis Turato
Project team
Siniša Glušica, Gordan Resan, Iva Ćuzela-Bilać, Ana Staničić
Construction consultant
Aljoša Travaš
Area
1 048 m²
Year
2003

The Church of Our Lady of Trsat is one of the most important pilgrimage sites in Croatia. According to the legend, angels transferred the Nazareth Tabernacle of the Holy Family to Trsat on 10 May 1291 where it remained until 1294 when angels transferred it to Loreto, Italy.

The first church was built at the end of the 13th century, and in the 15th century a new church and the Franciscan monastery were constructed. It was enlarged and re-constructed several times since.

The idea to ad a Great Hall building to the complex is connected with the Pope’s visit to Rijeka. At the beginning of June 2003 Pope John Paul II has arrived in Croatia for the third time. Being only the second Pope to visit Croatia (the first, Alexander III has been shipwrecked in 12th century), his visits had a broader social significance.

During his stay in Rijeka he has visited the Trsat church for a private prayer, and has on that occasion blessed the construction of the Monastery’s new building that would serve the pilgrims and house cultural activities of the monastery.

The new building is situated by the eastern wall, where were previously located service buildings. With this reconstruction a new major entrance for the pilgrims has been created at that part, and in order to accommodate the pedestrian flow the whole wall has been recessed creating a new public walk on the outside.

The new construction consists of two elements: a generic volume of the hall and a columned portico that is creating a new public square within the monastery. The Hall is cladded in a single terracotta-brick surface with a pixelized structure created by the changing gap between the elements, bringing the light in the hall.

The portico is supported with a series of short concrete walls, whose functional use was recognized during the 15 August pilgrimage in 2007, when these spaces have been used for confessions.

Maribor Drava Museum

Maribor, Slovenia
Location
Maribor, Slovenia
Client
City of Maribor
Author
Saša Randić
Project team
Janja Zovko, Ana Aščić, Ivan Dorotić, Breza Paić, Darovan Tušek, Suzana Lepanović, Diana Filipović
Year
2010

Kindergarten Katarina Frankopan

Krk, Island of Krk, Croatia
Location
Krk, Island of Krk, Croatia
Client
City of Krk
Author
Saša Randić. Idis Turato
Project team
Ana Staničić, Iva Šulina, Gordan Resan, Janko Jelić
Area
1 725 m²
Photographer
Sandro Lendler

The new kindergarten, on the island of Krk in Croatia, is located on the northeastern border of the town, amongst mostly tourist apartments and shopping malls.

In such an unattractive neighborhood, this kindergarten is shaped like an enclosed and introverted insula, surrounded by soaring stone walls. Inside this small town-kindergarten, units-houses are combined with open gardens, placed next to pedestrian communications.

Due to the rather small area of the kindergarten’s parcel, units for the smallest kids, together with belonging roof terraces – playgrounds, are located on the first floor of the building.

Kindergarten is defined by halls – kale (local name for small streets characteristic for historical centers of Dalmatian towns), aiming upwards or downwards, regarding the topography of the site.

Eastern and western entrances to the kindergarten are to be used by children, employees and guests, service entrance is on the north, and southern gates open the kindergarten towards the small, sunny oriented playground.

In the center of the kindergarten, there is a small square – a piazza, which is supposed to serve as a location for manifestations, events, and celebrations. Besides 7 units for older children, and 4, previously mentioned, units for youngsters, the kindergarten also embeds a hall for sports, recreation, and dance classes.
The plan area of the kindergarten is 1725 square meters, with a gross area of 2379 m².

Veli Vrh

Pula, Croatia
Location
Pula, Croatia
Client
City of Pula
Author
Saša Randić, Idis Turato
Project team
Gorjana Drašković, Maja Ivanovski, Ana Staničić, Gordan Resan
Area
8 535 m²
Year
2008

“Veli Vrh” is a Pula suburb with low-density housing dominated by the primary school situated on top of the hill. In February 2008 the school caught fire and was completely burned down, thus creating an unusual void bordering with pine trees in the middle of a typical suburban sprawl. This specific condition of emptiness served as the basis of the design concept.

This new primary school project is the winning entry of the competition released soon after the fire, in August 2008. The brief extended the program of the school with the Kindergarten, swimming pool and the Community Center, recognizing the school as the neighborhood’s focal point.

Due to the above-mentioned reason, the project divided the program into separate volumes forming a heterogeneous structure, creating an urban fabric in place of a building. The school is dismantled in its basic elements and re-connected in a new complex. Individual parts of the school consist of the following premises: classrooms, offices, a library and a gym. All the premises are conceived as separate buildings, connected with a longitudinal hall covered with a large canopy. The Kindergarten and the Community Center are located on the other side, encircling the site.

The location of the former school that went up in flames is left as a void space. This area is a natural amphitheater located in the center of the site, used as a playground and stage for both public and school events.

Elementary school Fran Krsto Frankopan

Krk, Island of Krk, Croatia
Location
Krk, Island of Krk, Croatia
Client
City of Krk
Author
Saša Randić, Idis Turato
Project team
Leora Dražul, Marko Derenčinović, Zvonimir Sabljak
Year
2003
Photographer
Robert Leš

The elementary school “Fran Krsto Frankopan” in the city of Krk is situated on the northeast corner of the medieval town.

The decision to locate the school within the medieval city was intensely discussed within the community and the city council. The central issue of the discussion was of course the dilemma of where to locate the building: within the city center, on the site of the existing school where everyone used to have the school, or in the outskirts, where the school would have a larger area and better accessibility, but it lacked the specific character of the existing location. Finally, the decision to position the school was followed by an invited competition, where the whole community participated in the choice of the project. This project is a winning entry in this competition.

The scale of the intervention in proportion to the size of the town made it an urban project.
The first important element was the relation to the city wall. The idea of replacing the existing school with the new one was in part generated by the Monument Protection Department, which wanted to change the existing skyline of the city dominated by the late 19ct school building. At the same, the construction of the new school has enabled archeological research and reconstruction of the city wall.

This context meant that the new building had to recess as much as possible from the fortification and respect the skyline where the fortification and the churches were the most important elements.

The building is following the property limits and at terrain topography resulting in a broken Z-shape. The facade has no architectural elements. It is defined with the shadow of cantilevered pre-fabricated concrete elements, creating a frame around the first floor. Classrooms are facing the city wall and the space in between: the younger ones are on the ground floor having the court in front of the classrooms, and the older ones have a view over the wall on the first floor.

The second issue concerning the positioning of the school was its relationship with the urban matrix. The size of the contemporary school in proportion to the size of the medieval city had the imminent danger that the school would be too big to fit in. For that reason the school was conceived as a part of the city, erasing the borders between the public space and school areas, making school a part of the city. Street and square are transformed into school territory: with the gym on the other side, the school opens to the street with the main entrance and its public elements: multipurpose hall and restaurant, engaging a reciprocal relationship between the street and the school. The public territory is used as a school territory at the same time. The path along the fortification, to the east of the school, is also open to the public leading from the school garden on the north to the nursery on the south.

Street façade, unlike the one facing the wall, is defined with the characteristic contextual elements: flat profilation and colored plaster, with internal colors exiting on the façade and different granulation of the plaster defining the proportion of this façade.

The roof of the building is covered with chunks of local stone that are the same size as in division walls on the island. The same stone was used for the fortification and is also used in the prefabricated elements on the school, either cast in the retaining walls or as a granulate in the façade elements, giving the concrete the same color as the stone.

Two beams of the Z-shape volume are connected in the entrance hall. Hall has double height, connecting the floors with the ramps and further to the corridors. Internal corridors, following the irregular slope of the terrain, have been interpreted as an extension of the town streets, following the conception that the school is a part of the city.

Faculty of Technology

Rijeka, Croatia
Location
Rijeka, Croatia
Client
Faculty of Technology, Rijeka
Author
Saša Randić, Idis Turato
Project team
Leora Dražul, Branka Juras
Year
2002

The Faculty of Technology in Rijeka is located in former 19. CT military barracks. The building has been reconstructed in the 1960s, when were also added new workshops and laboratories to the north, connected by a metal bridge to the main building.

This project is dealing with the space between these two buildings. Additional 3 floors of lecture rooms and workshops are added to the old building. This new volume is closed with a glazed facade consisting of 3,6 m high glass beams and 3,6x1m glass panels. A new connection to the north wing is located in the suspended metal frame, covered with a curtain of perforated anodized panels.

Office Building Korzo

Rijeka, Croatia
Location
Rijeka, Croatia
Author
Saša Randić, Idis Turato
Area
4 300 m²
Year
1999

The Partner Bank office building is situated in front of the medieval gate of Rijeka’s city center.

The building originates from the 18th century, when it was one of the first buildings of Civitas nova, the baroque new town erected outside the city walls.

It is flanked by two higher and more recent 19th-century buildings.

The objective of the project was not only to increase the density and floor area of the building, but to reestablish the presence of the building within the urban skyline.

The Department of Historical Building Preservation demanded that the existing three-storey building be preserved.
In addition, numerous reconstructions and years of improvised additions have made the existing building and nearby department store a nearly inseparable, complex structure.
The new owner admitted that the re-establishment of the building’s autonomy would be an impossible task.
These facts have clearly influenced the concept of reconstruction.

A new volume is placed on top of the existing one. It ‘peels away’ from its solid base as it rises. Each successive floor has a setback and a reduced ‘materiality’ of constructional elements, resulting in increased transparency that culminates in the building’s roof terrace.

Behind the facade’s metal screen wall the first floor has a concrete wall, the second a concrete parapet, the third a glass wall, and the fourth merely an empty frame.

The main feature of the facade is a curtain of perforated panels which are placed in front of the glass. Openings inside this curtain follow the rhythm of the lower base, vanishing on the top two floors. The existing volume has been kept in its original form.

Zagrad Office Building

Rijeka, Croatia
Location
Rijeka, Croatia
Author
Saša Randić, Idis Turato
Project team
Leora Dražul, Ana Staničić, Siniša Glušica, Iva Ćuzela
Construction consultant
Dragan Ribarić
Area
18 000 m²
Year
2003

The Zagrad project is located in the center of Rijeka. The project is located on top of the underground garage with 900 parking places and a future city train station.

The mixed-use program of 18 000 m2 consists of retail and office spaces and a third of housing.
The Center is divided into 6 separate office buildings, each with a different façade, on top of which is laid a continuous structure of apartments.
Seen as the most stable element of the program, apartments are designed as individual two-storey houses accessed from the roof terrace with gardens.

Project is characteristic of modern dynamics, where it is increasingly difficult for one office to control the whole process of construction. The plan was made by one office, the garage has been designed by another one, then the third designed the access road and the train station, Randić-Turato was responsible for the main part, the mixed-used program, and in the course of construction of other offices have been defining different interior parts of the building for their clients.

Secondly, the project proves that architecture is too slow. During the construction, there has been a series of modifications due to the change of final users. The project has been constantly confronted with the situation where it followed up on new requests.

Such context is typical for commercial projects, that redefines traditional client-architect relationship. The client being a developer is no longer the final user and the whole project is normally financed by another party. Usually, there is also an intermediary between them, a project manager, who is increasingly taking over the position previously controlled by the architect.

The nature of the project also influences the design method, which must count on the project dynamics as the most certain element of the program. The façades are deliberately disengaged from the inner structure, which never seemed to stop changing, while the apartments, following the logic of a self-generating structure have been able to absorb new staircases, galleries, and numerous partitions. In such a context the project must be able to accommodate imperfection. To put it in simple terms, if Keith Richards stumbles on the stage, it is a normal part of the performance, if the same thing happens to David Bowie, it is a total disaster. The benefit of imperfection.

Adris Office Building

Author
Saša Randić, Idis Turato
Project team
Igor Dragišić, Gorjana Drašković, Margita Grubiša, Ida Polzer, Ana Staničić, Danijela Škarica, Janja Zovko, Ivana Žalac
Construction consultant
Ivan Palijan
Year
2007

Adris Group Building project is a competition entry for the new headquarters of the company in Zagreb from 2007. The site was a former tobacco factory located in one of the blocks of the western part of the 19ct Zagreb Lower Town. The old factory building, built in 1882, was to be preserved and transformed into a museum, and the remaining part of the site was left for the new office program. The site is uncharacteristic for the Zagreb block structure: it is facing the railway and a busy street on the southern side, and it has a gas station inside the block that had to be kept in the proposal, a unique condition for the Zagreb city center.

The project investigated corporative office typology and its ability to generate public space. Offices are by nature a closed program, difficult to create an exciting urban environment. Instead of building a structure on the perimeter of the block, that creates a characteristic configuration with the public street on the outside and an enclosed private court on the inside, the concept raises the program in a structure that hovers over the existing block. In this way the ground floor was made completely accessible to the public, creating a covered square below the new office building. This condition is similar to the scene from the Independence Day film, when the gigantic flying saucers covered the whole city.

The building is generated through the free connection of the independent geometries, supporting structure as one, and a “flying saucer” as the second one. Similar to the way forms like “New Babylon” sculptures, or cartoon character SpongeBob SquarePants have been created. The new structure is supported by four sets of large steel columns. Access to the office part is through four supporting “legs”, each with a program on the ground floor and a hollow core leading to the structure above. Offices are organized within a horizontal frame structure, combined with programs like a recreation center, restaurants, and childcare facilities. This mixed structure takes advantage of the penthouse condition with a 360-degree panorama of Zagreb.

The follow-up of the competition has demonstrated the difficulties for the introduction of new typologies in a regulated urban environment.

Audi Cave Showroom

Rijeka, Croatia
Location
Rijeka, Croatia

Residential and office building in Agatićeva street

Rijeka, Croatia
Location
Rijeka, Croatia
Author
Saša Randić, Idis Turato
Project team
Gordan Resan
Area
5 150 m²
Year
2007
Photographer
Sandro Lendler

The residential and office building on Agatićeva Street is a kind of filling for a long-time desolate hole in the very centre of the town, which also opened the new pedestrian stretch that connects the Korzo with the northern end of the Delta. It is a detached house that concludes the row of houses on the northern border of Rijeka’s Old Town.

The structure is an interpretation of anonymous city architecture with a geometrized envelope as the main feature that finds its logic in the geometry of Stealth planes. This envelope is continued from the façade to the roof, where large skylights are opened mechanically.

In the program sense the structure did not have defined contents until it was finished, so it was planned in a way to enable interaction of different private and public programs. At the end of all program changes, the building was turned into a polyclinic, while apartments were moved to the fourth floor and under the roof. The apartments have separate access to the common courtyard on the fourth floor.

Hotel Amarin

Rovinj, Croatia
Location
Rovinj, Croatia
Client
Maistra d.d.
Author
Saša Randić
Project team
Janja Zovko, Vesna Jelušić, Olivija Horvatić, Nikola Škarić, Jurica Sinković, Danijela Škarica, Daša Manojlović, Ivan Dorotić, Vesna Milutin
Area
17 700 m²

As John Urry states in his book “Globalizing the Tourist Gaze”, recognition and attraction of every tourist location is tied to identifying its specific traits within the contours of global geography, history and culture.
An important feature of tourism is that it takes on the role of the “other”, that which is different from the everyday.
Thus, the success of a location isn’t contained so much in the comfort level of accommodation or quality of dining, but in providing concepts that offer excitement or a unique experience, and to what measure originality and uniqueness are recognized on a global scale.

The approach to designing a tourist development cannot be led by rational and utilitarian principles, rather a tourist development, especially one tied to the seaside area, has to possess elements of a spectacle.
The concept of a tourist development project is led by precisely this principle, that the possibilities of creating exciting and interesting spaces are researched through the open hotel spaces or through the typology of bungalows.

The Amarin Hotel is part of the summer tourist resort, set at the highest point of the complex, from where an exceptional view unfolds towards all sides, especially towards the sea and the Rovinj peninsula with its city core. The concept of the project is the result of a program and a location.

The hotel consists of two clear elements: a topographically shaped basement and ground floor with joint contents, along with a two-storey cross-section volume with rooms, freely placed all over the ground floor.

The driveway overhangs and shelters one of the four wings of rooms and continues to the lobby area. Formatively and spatially the interior does not differ from the exterior, like in Brazilian examples of public buildings where there are no barriers between the exterior and interior areas.

The ground floor premises are freely connected, so that open communication leads through the hotel lobby across the restaurant premises to the outdoor restaurant terrace and further on to the bar and animation area.

All the rooms are situated on two floors, with four tentacles in the blueprint taking the shape of an irregular cross ( a “propeller”), out of which three cover the contents of the ground floor, while the fourth is set on the columns above the entrance area. The hotel consists of a total of 172 rooms of which 30% have the possibility of merging into a family apartment.

Hotel Rovinj

Rovinj, Croatia
Location
Rovinj, Croatia
Author
Saša Randić, Idis Turato
Project team
Janja Zovko, Ivana Žalac, Iva Šulina, Ana Staničić
Area
9 200 m²
Year
2008

The hotel is located on the top of the old town’s peninsula in the middle of one of the iconic views of the Adriatic coast.
The current hotel is a mixed structure of the original construction from the 1960s and recent unfortunate additions that have motivated the city’s administration and the hotel owner to search for a solution through a public architectural competition.
Historically, the site has never been part of the densely built medieval structure, it has been vacant till the middle of the last century.

The edge condition between the built and green peak of the city was important for the concept of the project.
The hotel is also and out-of-scale building. Thus the building is a new topography with a series of terraces. The roof structure interlocks the green area and roof tops, changing the green and bricked covering the terraces.

Lapidarium Novigrad

Novigrad, Croatia
Location
Novigrad, Croatia
Client
City of Novigrad
Author
Saša Randić, Idis Turat
Project team
Leora Dražul
Area
780 m²
Year
2003

Novigrad Lapidarium Museum houses a collection of early medieval monuments, architectural sculptures and church furnishings, which all come from the neighbouring cathedral.

The building is situated inside the park bordered by the cathedral and residential buildings on the other side. One of the specifics of Novigrad, in comparison with other historical towns on the western coast of Istria, is that it has a large proportion of parks inside the historical city structure. This condition has been recognized as significant for the project.

Lapidarium is essentially two black boxes and the park. The boxes reconstruct the original rooms of the remains. The hexagonal concrete box represents the baptistery inside which the stone remains of the ciborium are displayed in their original position. The rectangular box is proportioned in relation to the altar partition exhibited inside it.

All the remaining space opens to the park covered by a roof supported by the two boxes, glazed with the rotational glass panels that open on the park. During the events housed by the Museum, the building performs as a central stage, using the whole park extending to the public square on the other side of the cathedral.

Le Mandrac Restraunt

Volosko, Croatia
Location
Volosko, Croatia
Author
Saša Randić, Idis Turato
Project team
Branka Juras, Ajda Vogelnik
Year
2004

The housing structure in Volosko is being converted into 5 luxury apartments, the restaurant terrace is being reconstructed on the ground floor along with the construction of a wine cellar, assisting areas and a new terrace at the back of the structure.

By reconstructing the restaurant, the existing interior space including the kitchen, sanitary installations and equipment is thus removed and replaced with a new canopied terrace. Tables for receiving guests are situated in the foreground of the restaurant, while the sanitary installations and the locale’s kitchen are situated on the north side of the structure. A new awning is being rendered on the terrace as well as folding glass facades that, in the summer period, open onto the terrace, covered with a wood pergola in which green climbing plants are interwoven.

The restaurant’s interior consists of ceiling coating made from epoxy segments according to the model of the outer awning that connects the interior and exterior restaurant space, paneled with wenge noble wood.

Bus station Delnice

Delnice, Croatia
Location
Delnice, Croatia
Author
Saša Randić
Project team
Vesna Jelušić, Nikola Škarić, Mario Furčić, Olivija Horvatić, Janja Zovko
Area
393 m²
Year
2011
Photographer
Sandro Lendler

The bus station is situated in the vicinity of the old Delnice bus station, on the outskirts of the settlement, right next to the forest.

The bus station consists of two architectural elements: the bus shelter and accompanying retail building, and the large zigzag roof covering the platform and bus shelter area.

The building elements have a clear reference to the construction practice of Gorski kotar: a slanted tin roof, and asbestos-cement facades.

D House

Zagreb, Croatia
Location
Zagreb, Croatia
Author
Saša Randić
Project team
Margita Grubiša, Janja Zovko, Mario Furčić, Nikola Škarić, Andrija Čuljak
Construction consultant
Saša Mitrović
Area
500 m²
Year
2009

The building is located in Zagreb, in a residential area from the early 20th century. The area is a park with inserted houses, while the lot itself is located at a prominent place, the structure’s perimeters facing the city park. The villas have characteristic features in line with the then social etiquette: introverted, of simple geometry, devoid of any excessive ornaments. The program is atypical for contemporary housing production in Croatia, even though it played an important role in the past. The beginning of the Modern period in Croatia is also connected to the typology of urban villas. As in the buildings of the former period, the villas were once again unobtrusive in shape and oriented towards interior intimacy.

The project aims to reinterpret models of Zagreb villas. The building is a compact, simple volume with openings in the concrete membranes thus framing the surrounding green spaces. The house’s interior follows the program’s logic and the user’s particular requests: the building is intended for a family of three. The ground floor and basement are comprised of common rooms: the entrance hall and living spaces follow the topography of the terrain, while a concealed indoor swimming pool is situated in the basement underneath it all. Two separate private units with bedrooms share a common central space on the upstairs landing. The building developed as a result of a collaborative process with its owner, and wasn’t brought to an end with the completion of the project but continued all through the construction phase.

Kaskade

Rijeka, Croatia
Location
Rijeka, Croatia
Author
Saša Randić

Sergio House

Demetrova

Rijeka, Croatia
Location
Rijeka, Croatia

Metro Baku

Baku, Azerbaijan
Location
Baku, Azerbaijan

Casa Granturismo

Silves, Portugal
Location
Silves, Portugal
Client
Granturismo
Author
Saša Randić, Idis Turato
Project team
Gordan Resan, Dubravka Perica
Year
2007

The concept for the houses in Silves is based on the belief that tourism provides new opportunities for a redefinition of the contemporary territory, especially along the densely inhabited tourist areas.

When one states that tourism brings “discontinuities” in contemporary territory, it is, in effect, a good thing: it brings emotions back into business, no matter how primordial they are. Tourism is the only field where one can actually apply experimentation to the architectural product: models like mobile homes, which were promoted by the architectural debate and embraced only by the American working class, have re-emerged in the late tourist resort boom in the Mediterranean coast, only now inhabited by the middle class.

Research of the new housing model is based on an emotional rather than rational concept of inhabiting the territory characteristic for tourism, which correlates to the case-study housing conceptual models that epitomize a physical, almost therapeutic relationship with nature.

Vault villa

Dubrovnik, Croatia
Location
Dubrovnik, Croatia
Author
Saša Randić
Project team
Ana Aščić, Janja Zovko, Breza Paić, Jurica Sinković
Area
1 500 m²
Year
2010
3D Visualisation
Arscom studio

The concept of the villa follows the organizational logic of the historical Dubrovnik villa typology. The building is organized in a rectangular two-wing structure, defined principally with a series of intersecting vaults. It is a completely transparent structure enclosed with only glass doors that can be fully folded thus extending the inner space of the villa into the surrounding garden. The garden follows the same logic, defining a geometrized territory inserted in a natural landscape.

The villa is organized on two floors: the ground floor contains a living area extending to the cliff with an outside pool area, with a kitchen and dining area located next to it. The living area is extended on the first floor, with an inner swimming pool area next to it.

The Villa is positioned on the western part of the site, which offers spectacular views of the city of Dubrovnik and the coast. Both floors of the living wing share this vista as well as a view of the valley on the other side. The bedroom wing is also arranged on two floors, providing eight large bedrooms.

The guest house is located on the other side of the geometric garden, sharing the same organizational logic as the main house

Green villa

Dubrovnik, Croatia
Location
Dubrovnik, Croatia
Author
Saša Randić
Project team
Ana Aščić, Janja Zovko, Breza Paić, Jurica Sinković
Area
1 500 m²
Year
2010
3D Visualisation
Arscom studio

The villa develops concept of the free-plan building, where the whole site is seen as an extension of the house.

Building is defined with the flying green volume hovering on top of the ground floor. The ground floor contains living areas organized in a free plan, enclosed with the curved glass wall. Inner and outside swimming pools mark this line, which is intended to be opened as much as the climate conditions allow.

The green volume on top houses bedrooms. It offers eight large bedrooms with terraces, organized in four wings.

Villa is located in the western part of the site, offering spectacular views on the city and the coast. Guest house is detached from the main building, giving greater privacy to the guests. It is following the same conceptual logic of the main building, a free plan space with the outside pool area marking the horizon line of the sea.

Qobustan Museum

Qobustan, Azerbaijan
Location
Qobustan, Azerbaijan
Author
Saša Randić
Project team
Ana Aščić, Breza Paić
Area
950 m²
Year
2010

The concept of the Rock Art Cultural Center proposal is a landscape gesture – by forming a new landscape in the manner of earth art, the whole center is becoming part of this outstanding natural environment; by enclosing the museum with meandering perimeter walls, a new quality of open- air space is provided- a square, a path, an exhibition area, a buffer zone. The existing building remains intact, but it is given a new context which generates new values.

Nosonja “Big nose”

Zagreb, Croatia
Location
Zagreb, Croatia
Author
Saša Randić, Idis Turato
Project team
Ana Aščić, Igor Ekštajn, Margita Grubiša, Breza Paić, Janja Zovko, Ivana Žalac
Construction consultant
Dragan Ribarić
Area
43 907 m²
Year
2009

The office building project on Zagreb Avenue is an attempt to redefine the model of office buildings that have two main characteristics: they want to be a glass tower and are indifferent towards their surroundings. This project is set up on an opposite assumption.

It’s debatable whether we can call an 18-storey building a tower, or just a somewhat higher building. Such structures are awkward or have condensed layouts so as to gain an elegant vertical line, much like a slightly reduced mock-up of real towers.

This structure isn’t a tower, merely a building of a slightly larger volume which regularly makes use of the available area for placing content. A part towards the Zagreb Avenue was revoked from the full volume of the building, where a new canopied city square was designed. This space is defined by the construction of wrought iron brackets, beams, and stairs that create mutual relationships with the building’s volume with clear references to New Babylon and the constructivists.

The issue of public space isn’t only tied to the typology of office buildings but to the character of significant city highways such as the Zagreb Avenue, which implies a passageway, while not stopping along the building itself. However, in this case, the surrounding densely built area grants the potential of transformation of the Zagreb Avenue from a highway to a city avenue. Of course, that’s dependent on the typology of buildings built in its vicinity.